Nos biens

Nouveau projet - Maison

Nouveau projet maison 3 façades

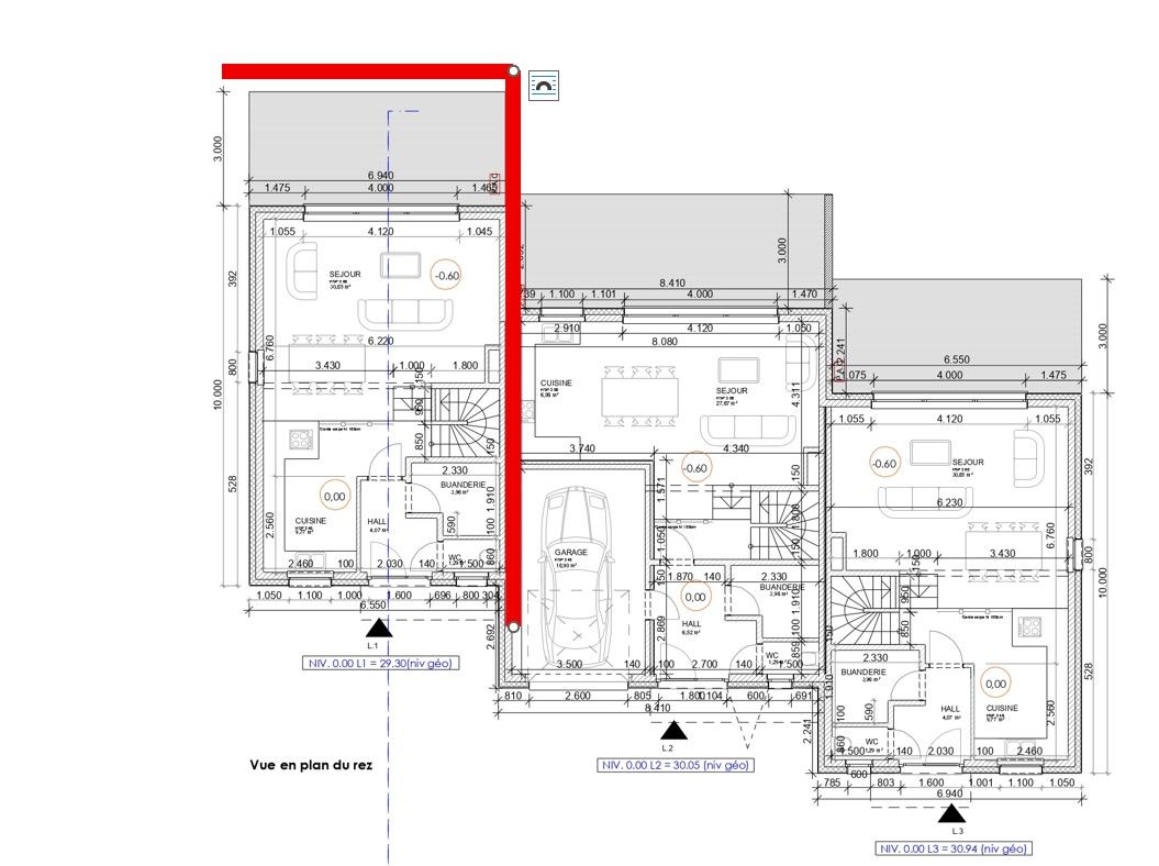
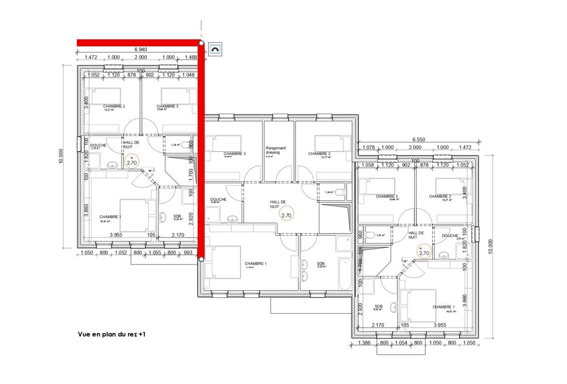
Description

Découvrez cette maison neuve de 170 m², construite sur un terrain de 5 ares avec trois façades. Elle bénéficie d’un emplacement privilégié, offrant une superbe vue sur la campagne et se trouvant à proximité des commerces, écoles, transports en commun et principaux axes routiers. La maison comprend : un hall d’entrée avec WC et vestiaire, un séjour lumineux ouvrant sur une terrasse et un jardin exposé sud-ouest, ainsi qu’une cuisine ouverte non équipée. À l’étage, vous trouverez trois chambres, une salle de bain, une salle de douche et un WC séparé. Le grenier, accessible par un escalier fixe, peut être aménagé selon vos besoins. Le rez-de-chaussée et les salles d’eau disposent d’un chauffage par le sol, alimenté par une pompe à chaleur. Les finitions sont personnalisables selon les souhaits des acquéreurs.


  • Maison 3 façades de 170m²
    Prix 495.000€ hors frais

  • Localisation : BRAINE LE CHATEAU
  • Horaire : Visites sur rendez-vous
  • Contact : +32 (0) 475 73 55 57
Demande de renseignements
Référence Description Chambre(s)EtageSurfaceJardinTerrassePrix (HTVA)
Landuyt MAISON 31170 m²500 m²21 m²495 000,00 €

Ce site utilise des cookies

Nous utilisons des cookies pour assurer le bon fonctionnement du site. Vous pouvez consulter nos mentions légales et notre politique de confidentialité pour plus d'informations.

Accepter les cookies Paramétrer les cookies